Построена сглобяема къща с две спални с РЗП 74,10 и 16,63 кв.м. покрита тераса


За допълнителна информация, връзка с Нас и подробна ценова оферта, моля използвайте формата за контакти . Ние ще отговорим на Вашите въпроси възможно най-скоро.

5 + 2 =

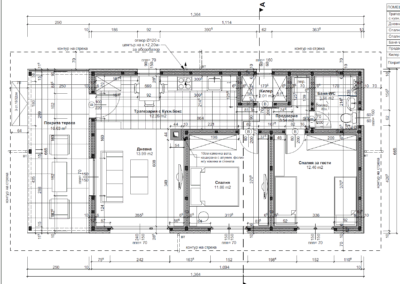
Проектът „Рельово“ представя построена едноетажна сглобяема къща с РЗП 74,10 кв.м, изпълнена от „Хубав дом“. Къщата е проектирана с мисъл за функционалност, комфорт и енергийна ефективност. Разпределението включва дневна с трапезария и кухненски бокс, две спални, баня с тоалетна, килер и покрита тераса – идеално решение за малко семейство или ваканционен имот.

Конструкцията е изцяло дървена, с висок клас изолация от каменна вата Rockwool, която осигурява отлична топло- и шумоизолация. Фасадата е завършена с декоративна каменна облицовка в основата и минерална мазилка в светъл тон. Покривът е четирискатен с керемиди, което придава класически и уютен вид.

Този проект демонстрира възможностите на съвременните сглобяеми къщи – бързо строителство, ниски експлоатационни разходи и високо ниво на комфорт.